top of page
Dynamic Top
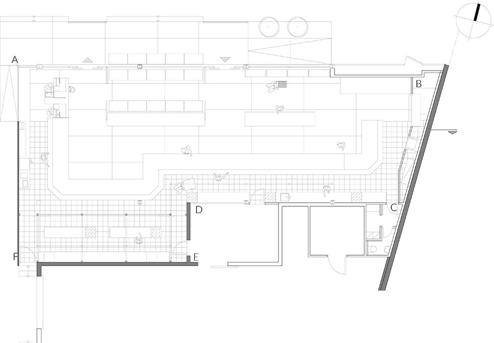
Butchershop
Palatanias, Crete




1/9
4*Resort
Hotel Renovation
Description
The Butcher Shop is a point of sale of a meat standardization and processing unit. The renovation proposal maintains the industrial character of the unit and the main intention is to keep as much as possible the standardization and processing activity linked to the retail space. In the new shop, the meat is the dominant element and related products, like the fruit market, the wine cellar, the cheese and the special accompanying products revolve around it. The movement in the store is organized as a stroll among the various displays.

Design Team: | Agapi Proimou, Lefteris Michaloutsos, Virginia Malami |
Status: | Completed 2017 |
Commercial
bottom of page






